市场浪潮翻涌不息,行业规则瞬息万变,无数选择在利益与初心的博弈中摇摆 —— 但CPD 始终以诚信为立业之根。
图标

欢迎来到博图创启设计:





设计案例

PRODUCT
当前位置: 首页 > 设计案例

融古于今,轻韵重境,东方雅致的现代新生

发布时间:2026/02/04    浏览次数:
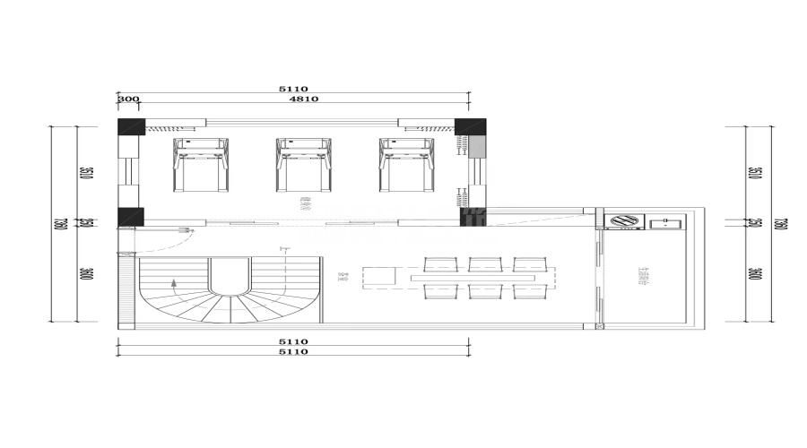
设计理念
师法自然,意境为魂 新中式的核心不是堆砌雕花、屏风等中式元素,而是营造东方独有的「意境美」,追求「天人合一、移步换景」的雅致氛围,讲究「留白、藏拙、虚实相生」,像中式水墨画一样,少即是多,以简胜繁,让空间有呼吸感、有诗意,这是新中式区别于其他风格的灵魂所在。清雅、静谧、温润、禅意,褪去浮躁,回归东方生活的松弛感。
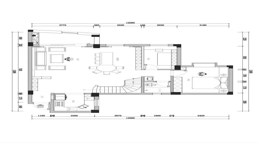
客厅
融古于今,轻韵重境,东方雅致的现代新生(图1) 融古于今,轻韵重境,东方雅致的现代新生(图2) 融古于今,轻韵重境,东方雅致的现代新生(图3)
客厅
3张
餐厅
融古于今,轻韵重境,东方雅致的现代新生(图4) 融古于今,轻韵重境,东方雅致的现代新生(图5) 融古于今,轻韵重境,东方雅致的现代新生(图6)
餐厅
3张
儿童房
融古于今,轻韵重境,东方雅致的现代新生(图7) 融古于今,轻韵重境,东方雅致的现代新生(图8)
儿童房
2张
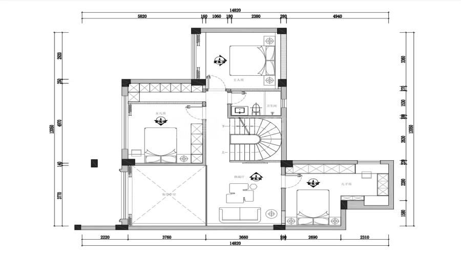
主人房
融古于今,轻韵重境,东方雅致的现代新生(图9)
主人房
1张
客房
融古于今,轻韵重境,东方雅致的现代新生(图8)
客房
1张
长辈房
融古于今,轻韵重境,东方雅致的现代新生(图11)
长辈房
1张